Kiadó téglalakás - Budapest, XI. kerület

KAPCSOLAT
Hosszú Levente


+36 70 456

hosszu.levente@

Az időpont kérés naptár ikonja
IDŐPONTOT KÉREK
A visszahívás kérés telefon ikonja egy azt körbe ölelő nyíllal
VISSZAHÍVÁST KÉREK
Ajánlom egy ismerősömnek ikon
AJÁNLOM EGY ISMERŐSÖMNEK
Facebook megosztás ikon
MEGOSZTÁS

KAPCSOLATFELVÉTEL

Küldés

Az üzenetet sikeresen elküldtük!
Hiba történt!
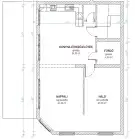
INGATLAN ADATAI

Ingatlan jellege

téglalakás

Belső terület

74 m²

Tájolás

délnyugat

Építési állapot

használt

Építési mód

tégla

Szobák száma

2 szoba

Szobák elhelyezkedése

egybenyílóak

Bútorozottság

nem

Kert

(saját kert)

Terasz

30 m²

Emelet

földszint.

Épület szintje

3.

Épült

1986

Lift

nincs

Ingatlan állapot

kívül: felújított
belül: jó

Fűtés

cirko

Komfort

összkomfort

Kilátás

kertre

Energetika

nincs megadva

Háziállat hozható?

hozható

Az időpont kérés naptár ikonja
HTML
Az időpont kérés naptár ikonja
PDF
Kiadó téglalakás
Ingatlan azonosító:
3964_red

Budapest, XI. kerület, Adony utcai ltp.

Bérleti díj

340 E Ft/hó
(4.59 E Ft/㎡)

Szobák

2 szoba

Emelet

földszint

Terület

74 m²
INGATLAN LEÍRÁSA
Kiadó kertkapcsolatos lakás Sasadon – nagy terasszal, saját kerttel

Sasad csendes, nyugodt utcájában, a XII. kerület határán hosszabb távra kiadó egy 70 m²-es, földszinti, bútorozatlan, két szobás lakás, amelyhez kifejezetten nagy terasz és saját használatú kert tartozik.

A lakás 2023-ban felújításon esett át, jó állapotú, kellemes arányú terekkel rendelkezik. Délnyugati fekvésének köszönhetően világos, benapozott, az intim kertkapcsolat pedig valódi pluszt ad a mindennapokhoz.

A fűtés gázcirkó, a rezsi fogyasztás alapján fizetendő.
Kialakítása miatt elsősorban 1–2 fő részére ideális, ugyanakkor kisállat-barát (kutya, macska megengedett).

A környék kifejezetten csendes, mégis jól megközelíthető:
a 8-as és 53-as busz, valamint a villamosmegálló is rövid sétával elérhető.

Bérleti díj: 340.000 Ft / hó
(a közös költséget tartalmazza)
Rezsi: áram, víz, gáz fogyasztás szerint
Kaució: 2 havi bérleti díj
Szerződés: közjegyzői nyilatkozattal
Költözés: 2026. január 10-től

INGATLAN ADATAI

Ingatlan jellege
téglalakás
Belső terület
74 m²
Tájolás
délnyugat
Építési állapot
használt
Építési mód
tégla
Szobák száma
2 szoba
Szobák elhelyezkedése
egybenyílóak
Bútorozottság
nem
Kert
(saját kert)
Terasz
30 m²
Emelet
földszint.
Épület szintje
3.
Épült
1986
Lift
nincs
Ingatlan állapot
kívül: felújított
belül: jó
Fűtés
cirko
Komfort
összkomfort
Kilátás
kertre
Energetika
nincs megadva
Háziállat hozható?
hozható
TÉRKÉP

Budapest, XI. kerület, Adony utcai ltp.

KAPCSOLAT
Hosszú Levente
Hosszú Levente


+36 70 456 1112

hosszu.levente@ibred.hu

KAPCSOLAT
Hosszú Levente

+36 70 456

hosszu.levente@

Az időpont kérés naptár ikonja
IDŐPONTOT KÉREK
A visszahívás kérés telefon ikonja egy azt körbe ölelő nyíllal
VISSZAHÍVÁST KÉREK
Ajánlom egy ismerősömnek ikon
AJÁNLOM EGY ISMERŐSÖMNEK
Facebook megosztás ikon
MEGOSZTÁS

KAPCSOLATFELVÉTEL

Küldés

Az üzenetet sikeresen elküldtük!
Hiba történt!
INGATLAN ADATAI

Ingatlan jellege

tégla lakás

Belső terület

74 m²

Tájolás

délnyugat

Építési állapot

használt

Építési mód

tégla

Szobák száma

2 szoba

Szobák elhelyezkedése

egybenyílóak

Bútorozottság

nem

Kert

(saját kert)

Terasz

30 m²

Emelet

földszint.

Épület szintje

3.

Épült

1986

Lift

nincs

Ingatlan állapot

kívül: felújított
belül: jó

Fűtés

cirko

Komfort

összkomfort

Kilátás

kertre

Energetika

nincs megadva

Háziállat hozható?

hozható

Az időpont kérés naptár ikonja
HTML
Az időpont kérés naptár ikonja
PDF

Hasonló ingatlan hírdetések

Kiadó, bérelhető tégla-, vagy panellakás hirdetést keres Budapesten a XI. kerületben?
Tekintse meg további ajánlatainkat!

kiadó tégla lakás, Budapest, XI. kerület

kiadó tégla lakás

Budapest, XI. kerület, Sashegy
XI. Sasad szívében, csendes, zöld, kertvárosias, kifogástalan környezetben elhelyezkedő, világos, két erkéllyel bíró, jó állapotú, zöld panorámás, emeleti, 4 szobás, AZONNAL KÖLTÖZHETŐ lakás hosszútáv...
Belső terület
100 m²
Szobák
4
Emelet
1

380 E Ft/hó

azonnal költözhető
Azonnal költözhető
kiadó tégla lakás, Budapest, XI. kerület

kiadó tégla lakás

Budapest, XI. kerület, Kelenföld
Hosszú távra keresi álmai otthonát? Ha igen az élet új lehetőséget kínál Önnek, Önöknek egy XI. kerületi azonnal költözhető, kiadó lakás formájában. A lakás ideális pároknak vagy egyedülállóknak, aki...
Belső terület
55 m²
Szobák
2
Emelet
1

330 E Ft/hó

kiadó tégla lakás, Budapest, XI. kerület

kiadó tégla lakás

Budapest, XI. kerület, Sashegy
XI. SAS-HEGY oldalában, csendes utcában, 9 lakásos, rendezett társasházban ELSŐ EMELETI, 54 nm alapterületű, NAPFÉNYES, 2 szobás (külön bejáratúak), külön étkező-konyhás, külön fürdő - külön wc beoszt...
Belső terület
54 m²
Szobák
2
Emelet
1

230 E Ft/hó

kiadó tégla lakás, Budapest, XI. kerület

kiadó tégla lakás

Budapest, XI. kerület, Kelenföld
XI. Fadrusz utcában, Bocskai úthoz közel, kitűnő infrastrukturális adottságok mellett (Alle Bevásárlóközpont, Fehérvári úti Vásárcsarnok pár perc sétatávolságra, tömegközlekedési eszközök (M4-es metró...
Belső terület
116 m²
Szobák
3
Emelet
1

400 E Ft/hó

kiadó új építésű tégla lakás, Budapest, XI. kerület

kiadó új építésű tégla lakás

Budapest, XI. kerület, Nádorkert
Budaparton új építésű, 2021-ban átadott lakóparkban Kopaszi gát és a Duna szomszédságában, minimum egy évre kiadó 110 nm-es 4 szobás, csendes, napfényes lakás. Amerikai konyhás nappali étkezővel és k...
Belső terület
96 m²
Szobák
4
Emelet
1

1.08 M Ft/hó

(2,8 M €)

kiadó új építésű tégla lakás, Budapest, XI. kerület

kiadó új építésű tégla lakás

Budapest, XI. kerület, Kelenföld – Nádorliget lakópark, Hauszmann Alajos utca
Budapart új építésű luxus lakóparkban Kopaszi gát közelében frissen átadott 7. emeleti, nagy erkélyes, Dunai panorámás, 3 szobás 80 nm-es lakás első bérlője részére minimum egy évre kiadó. Tágas ameri...
Belső terület
80 m²
Szobák
3
Emelet
7

542 E Ft/hó

(1,4 M €)

kiadó tégla lakás, Budapest, XI. kerület

kiadó tégla lakás

Budapest, XI. kerület, Műegyetem környéke
Buda XI. kerületében a Gellérthegy lábánál, 1930-ban épült, nagyon szép társasaház negyedik emeletén egy 4. (lgfölső) emeleti, 108nm-es felújított, gépesített lakás kiadó. Kiválóan alkalmas lakásnak, ...
Belső terület
108 m²
Szobák
3
Emelet
4

350 E Ft/hó

azonnal költözhető
Azonnal költözhető
Budapest, XI. kerület - Adony utcai ltp.
Budapest, XI. kerület - Adony utcai ltp.
Budapest, XI. kerület - Adony utcai ltp.
Budapest, XI. kerület - Adony utcai ltp.
Budapest, XI. kerület - Adony utcai ltp.
Budapest, XI. kerület - Adony utcai ltp.
Budapest, XI. kerület - Adony utcai ltp.
Budapest, XI. kerület - Adony utcai ltp.
Budapest, XI. kerület - Adony utcai ltp.
Budapest, XI. kerület - Adony utcai ltp.
Budapest, XI. kerület - Adony utcai ltp.
Budapest, XI. kerület - Adony utcai ltp.
Budapest, XI. kerület - Adony utcai ltp.
Budapest, XI. kerület - Adony utcai ltp.
Budapest, XI. kerület - Adony utcai ltp.
Budapest, XI. kerület - Adony utcai ltp.